West End Economical Office Unit for Lease - $12/SF Gross Rent

Description
$12

Address: 15889 116 Avenue, Edmonton AB

GROSS RENTAL RATE: $12.00/SQ. FT./ANNUM includes Tenant's proportionate share of property taxes, building insurance, common area maintenance, and property management. Utilities are separately metered.
(Works out to $2,700/month)

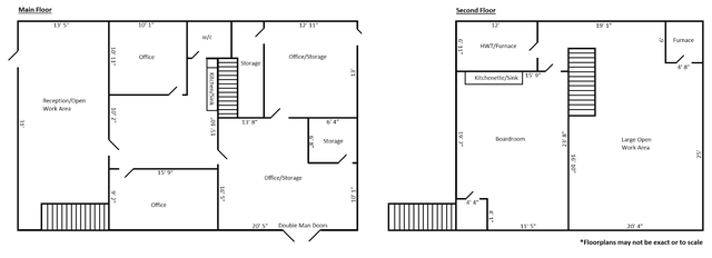
Available Area: 2,700 SF Total (Main floor 1,600 SF & Second Floor 1,100 SF)

Lease term: 3 to 5 years

Available: Immediately

Parking: 4 exclusive on-site stalls, additional side (parallel) stalls, and street parking

Property Highlights
• 2,700 sq.ft.± main and second floor office unit available immediately for Lease
o Main floor (1,600 sq.ft.±) consists of full ceiling reception/open work area, two private offices, kitchenette with sink, bathroom, and multiple storage/multipurpose rooms
o Second floor (1,100 sq.ft.±) consists of attractive boardroom with bar/sink and large open work area/
training room
• Corner unit with wrap around windows and modern finishings throughout
• Double man door at back of unit with multiple storage rooms
• Four on-site parking stalls with potential for additional parallel stalls adjacent to building and street parking
• Convenient location just off 156th Street, within minutes of Anthony Henday, Yellowhead Hwy, 170th Street
and Whitemud Drive

Contact Michael at 780-982-7215 for more information or to schedule a viewing.
When you call please mention you found this ad listing on OKz.ca

Contact Information

Contact Person:User
Address:15889 116th Avenue Northwest, Edmonton, AB
City:Edmonton
Phone:780-982-XXXX (Show)
Asking Price:$12

Other Information

For Rent By:Owner
Furnished:No

Related Listings

MERIDIAN PLACE

MERIDIAN PLACE

Contact for price | Edmonton

Address: 7633 - 50 St NW, Edmonton, AB, T6B 2W9, Edmonton

Classroom, Meeting Space Hourly, daily Available

Classroom, Meeting Space Hourly, daily Available

$75 | Edmonton

Address: 11715 124 Street, Edmonton, AB, Edmonton

NEW WALK-IN MEDICAL SPACE FOR LEASE

NEW WALK-IN MEDICAL SPACE FOR LEASE

$5000 | Edmonton

Address: 4456 Calgary Trail, Edmonton, AB, Edmonton

Seerath

Seerath

$550 | Edmonton

Address: 9704 27 Avenue Northwest, Edmonton, AB, Edmonton

Office space for rent available immediately

Office space for rent available immediately

$1850 | Edmonton

Address: Edmonton, AB T6E 6A4, Edmonton


User

On OKz since February, 2018

780-982-XXXX


Posted on: 30/01/2026 @ 08:12 am

Copyrights © 2026 OKZ.CA all rights reserved.