Tom

Description
$279500

You can't open a newspaper, or turn on your television nowadays, without seeing somebody talking about affordable housing. The story's always the same; there's a huge need, but very little is being done to meet that need. In our own small way, we think we can help.

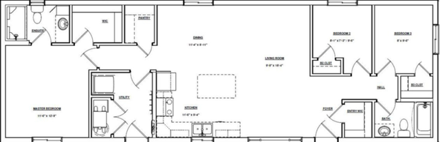
If you're someone looking for that rare affordable home, you might want to consider these two unique opportunities. One is a super energy efficient, 1200 square foot, 3 bedroom, 2 bath home, priced at $279,500, while the other is a smaller 2 bedroom, 2 bath home of just under 1,000 square feet. The smaller home is priced at $229,500. Complete with appliances and central air conditioning, both these move-in ready homes can be purchased for as little as 5% down, with total monthly payments of $1,707 and $1,653 respectively. That's less than the rent you would pay for most 2-bedroom apartments in Winnipeg.

How do we make it that affordable? It's all because of the unique ownership structure at Rivergrove Estates, Manitoba's premiere manufactured home park. In our park, you own your home, but you lease the land the home sits on. This form of ownership structure is used for many of the recreational areas in the province (Falcon Lake, the Whiteshell, Clear Lake, Hecla Island, etc.) as well as for many high-end resort properties in the U.S.

This unique ownership structure means no Land Transfer Tax on the purchase ($3,364 and $2,364 respectively), no property taxes (easily $300 per month) and you get a tax credit on the monthly rent you pay for your lot. Importantly, the lease on your land falls under the Provincial Rent Control Legislation, so there's little likelihood of a large rental increase in the future.

There's only two, and when they're gone, they're gone, so if you're in the market for an affordable home, make sure you check out these unique opportunities!

To arrange a private viewing, or to receive a detailed information package, call/text Tom Creighton at 204-229-1775, or email FBB@MTS.NET.

RIVERGROVE ESTATES
CITY CONVENIENT! COUNTRY QUIET!
When you call please mention you found this ad listing on OKz.ca

Contact Information

Contact Person:User
Address:2695 Main Street, Winnipeg, MB
City:Winnipeg
Phone:204-229-XXXX (Show)
Asking Price:$279500

Other Information

Bathrooms:2
Bedrooms:3
For Sale By:Professional

Related Listings

OPEN HOUSE! Beautiful 1740sqft Custom-Built BNG in Oak Bluff!

OPEN HOUSE! Beautiful 1740sqft Custom-Built BNG in Oak Bluff!

$879900 | Winnipeg

Address: Fieldstone Cres, Oak Bluff, MB, Winnipeg

The Narrows Lake Lot

The Narrows Lake Lot

$150000 | Winnipeg

Address: The Narrows, MB R0C 3C0, Winnipeg

FINALLY, 2 AFFORDABLE HOUSING OPTIONS!

FINALLY, 2 AFFORDABLE HOUSING OPTIONS!

$279500 | Winnipeg

Address: 2695 Main Street, Winnipeg, MB, Winnipeg

FINALLY, 2 AFFORDABLE HOUSING OPTIONS!

FINALLY, 2 AFFORDABLE HOUSING OPTIONS!

$279500 | Winnipeg

Address: 2695 Main Street, Winnipeg, MB, Winnipeg

Turn Key Selkirk 3 Bedroom with Garage!

Turn Key Selkirk 3 Bedroom with Garage!

$279900 | Winnipeg

Address: Selkirk, MB R1A 0H3, Winnipeg


User

On OKz since February, 2018

204-229-XXXX


Posted on: 11/02/2026 @ 03:21 am

Copyrights © 2026 OKZ.CA all rights reserved.